Продам однокомнатную квартиру в новостройке 41.5 м.кв.

на карте
Просмотров 14
29 792 850 руб.
Москва , Лефортово, Золоторожский Вал улица, д.11стр39
Отдел продаж
Показать телефон
метро
Данные актуальны на 22.04.2026
Пожаловаться на объявление
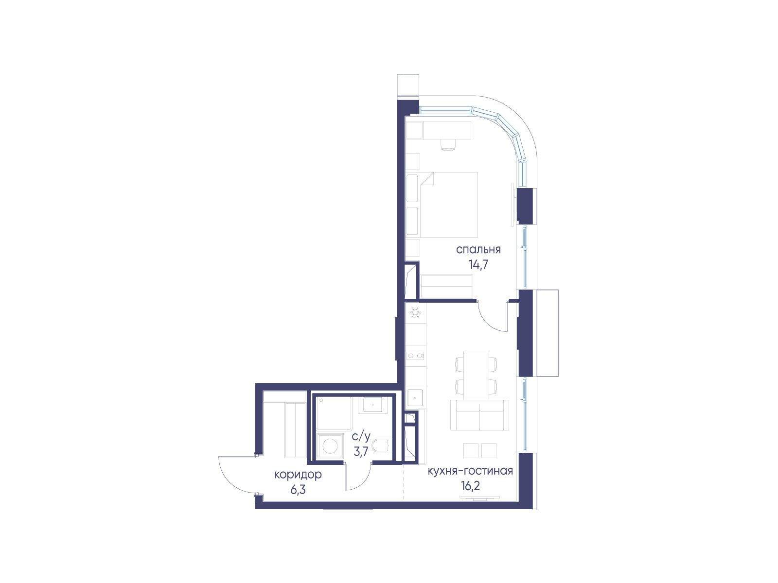
Продается 1-комнатная квартира от застройщика: общая площадь 41.50 м, жилая 14.70 м, кухня 16.20 м, 2-й этаж, жилой квартал «Гордость», корпус 40 (секция 1) . Срок сдачи: 2 квартал 2029 года. Квартира продаётся с чистовой отделкой и мебелью! Идеальный вариант для тех, кто приобретает недвижимость для сдачи в аренду! Инвестиционный продукт для получения постоянного дохода. Позвоните сейчас и забронируйте квартиру! Квартал бизнес-класса СИМВОЛ - это городское пространство нового поколения в историческом районе Лефортово, на границе ЦАО, в 2 км от Садового кольца. Бионическая архитектура СИМВОЛА превратила Лефортово в суперсовременное и модное пространство. Из окон, с балконов и террас просторных квартир СИМВОЛА открываются отличные виды на город и новый парк «Зеленая река», «протекающий» через все кварталы комплекса на 2 км. В квартале уже есть все, что нужно для комфортной жизни: кафе и рестораны, супермаркеты и магазины, медицинские и физкультурно-оздоровительные центры, салоны красоты и барбершопы, аптеки и оптики, химчистки, пункты доставки и другие сервисы - всего более 90 действующих объектов внутриквартальной инфраструктуры. Для юных жителей СИМВОЛА открыты детский сад и инженерный лицей при МГТУ им. Баумана. Особенности квартала: Свой парк «Зеленая Река» - 10 га зелени и развлечений на любой вкус! Уникальная для Москвы архитектура - Проект создан архитектурной мастерской ATRIUM по дизайн-коду британских бюро LDA Design и UHA London. Богатая инфраструктура с детскими садами и лицеем им. Баумана, кафе и ресторанами, супермаркетами и аптеками, зоной для фитнеса, бассейном и мед. центром. Квартиры с панорамными окнами, террасами, ванными с окнами и каминами редких форматов. Закрытые безопасные зелёные дворы-парки без машин!

Параметры здания

Тип дома Монолитный Год постройки 2029 Дом сдан Нет Лифт Есть
Мусоропровод - Охрана/консьерж Нет Парковка Нет

Параметры объекта

Этаж 2 Этажность 21 Площадь комнат - Жилая площадь 14.7 м.кв. Площадь кухни 16.2 м.кв. Высота потолков 3.06 м. Покрытие пола - Санузел Совмещенный Балкон -
Окна выходят Во двор Телефон - Интернет - Мебель - Бытовая техника - Кондиционер - Отделка - От застройщика Нет

Параметры продажи

Тип продажи Прямая продажа Торг -
Ипотека Да
Объекты, находящиеся поблизости
Банки, банкоматы
Сбербанк 394м
ПАО Сбербанк 404м
ПАО "Промсвязьбанк" 407м
ВТБ 427м
"Азиатско-Тихоокеанский Банк" (АО) 515м
Магазины
Магнит 733м
Столовые, кафе
Surf Coffee 286м
Cafebara 379м
СтарДогс 424м
Шоколадница 502м
Суши Бар 524м
Аптеки
36,6 91м
Ригла 329м
36,6 388м
Фармленд 749м
Учебные заведения
Автоунивер 338м
Почта
DHL 189м
Pony Express 453м
Динамика изменения цен на рынке недвижимости ?

За последние полгода средняя сумма за кв.м. выросла на 25605 руб. Колебание цен происходило от 493697 руб. до 519302 руб. На текущий момент наблюдается тенденция к росту цены.
За последние полгода средняя сумма за кв.м. выросла на 33023 руб. Колебание цен происходило от 371519 руб. до 404542 руб. На текущий момент наблюдается тенденция к росту цены.
Похожие объявления
Обновлено
22.04.2026
Фотографии
10
Объявление 5027864
Москва, Юго-Восточный АО, Лефортово, Золоторожский Вал улица, д.11стр39
31 925 880
руб. Продажа
41.2 м2
Обновлено
22.04.2026
Фотографии
10
Объявление 5033346
Москва, Юго-Восточный АО, Лефортово, Золоторожский Вал улица, д.11стр39
29 590 110
руб. Продажа
36.9 м2
Обновлено
22.04.2026
Фотографии
10
Объявление 5033345
Москва, Юго-Восточный АО, Лефортово, Золоторожский Вал улица, д.11стр39
28 520 010
руб. Продажа
36.9 м2
Обновлено
22.04.2026
Фотографии
10
Объявление 5027817
Москва, Юго-Восточный АО, Лефортово, Золоторожский Вал улица, д.11стр39
29 366 820
руб. Продажа
37.8 м2
Обновлено
22.04.2026
Фотографии
10
Объявление 5029017
Москва, Юго-Восточный АО, Лефортово, Золоторожский Вал улица, д.11стр39
29 516 310
руб. Продажа
36.9 м2
Обновлено
22.04.2026
Фотографии
10
Объявление 5028314
Москва, Северо-Западный АО, Хорошево-Мневники, Нижние Мнёвники улица, д.62В
31 742 400
руб. Продажа
38.9 м2
Обновлено
22.04.2026
Фотографии
10
Объявление 5029035
Москва, Юго-Восточный АО, Лефортово, Золоторожский Вал улица, д.11стр39
30 143 610
руб. Продажа
36.9 м2
Обновлено
22.04.2026
Фотографии
10
Объявление 5028237
Москва, Северо-Западный АО, Хорошево-Мневники, Нижние Мнёвники улица, д.62В
32 831 600
руб. Продажа
38.9 м2
Обновлено
22.04.2026
Фотографии
10
Объявление 5028106
Москва, Северо-Западный АО, Хорошево-Мневники, Нижние Мнёвники улица, д.62В
31 470 100
руб. Продажа
38.9 м2
Обновлено
22.04.2026
Фотографии
10
Объявление 5027826
Москва, Юго-Восточный АО, Лефортово, Золоторожский Вал улица, д.11стр39
28 229 390
руб. Продажа
37.1 м2
Вход в личный кабинет